BIM技术在装饰装修过程中的应用
2020-10-21 00:00:00 来源: 点击:2699 喜欢:0
一、BIM应用概述
随着我国国民经济的发展,人民的生活水平日益提高,人们对于建筑的装饰要求、建筑装饰企业的设计水平和工程管理水平也越来越高,因此,在建筑装饰装修工程中引入BIM技术十分具有必要性。BIM技术成功实现了由传统的二维图纸向三维信息模型的转变,使得建筑信息能够更加全面、直观地展示出来。同时,BIM技术作为一个载体,将设计、施工、业主紧密的联系在一起,大大提高了沟通效率和管理水平。
二、BIM应用优势
建筑装饰装修作为我国建筑领域重要的组成部分,其当前的管理模式落后,严重阻碍了建筑装修行业的发展。BIM技术通过计算机建立一个集合了设计到施工的所有项目信息的建筑三维模型,能有效的避免和解决目前用CAD绘制二维图纸存在的效率低下、图纸错漏不易发现、重复出图、各专业冲突等一系列矛盾。具有可视化、协同性和信息可提取性等特点和优势。
三、BIM在项目中的应用
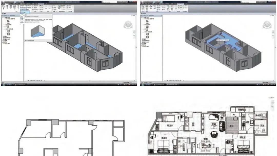
3.1、基于BIM技术的可视化应用
使用BIM技术可以完成室内墙面、地面、吊顶、隔断等装饰构件三维模型的绘制,实现了项目设计以及施工的可视化。
3.1.1、设计阶段
在设计阶段建筑和构件都可以以三维方式直观呈现出来,设计师就能够运用三维的思考方式有效地完成建筑设计,另外对于业主来说可以真正摆脱因为缺乏识图技能而不能很好的了解设计意图的弊端。
【图例】
【图例】
【图例】
3.1.2、施工阶段
在施工阶段,利用BIM工具将原来通过平面方式来表达的施工场地布置,升级成以三维动态方式表达的场地布置,能够对于施工现场进行更加有效的管理;对于复杂构造节点的可视化,将复杂的构造节点用三维模型+数据参数的方式,全方位呈现出来,大大降低了材料进场以及工人施工的难度。
【图例】
3.2、基于BIM技术的施工进度管控
基于BIM技术的可视化与集成化特点,在已经生成进度计划前提下利用BIM工具软件软件可进行精细化施工模拟。从材料进场到竣工验收,对所有的工序都可以提前进行预演,可以提前找出施工方案和组织设计中的问题,进行修改优化,实现高效率、优效益的目的。基于BIM模型,动态模拟项目建设过程,指导、管理和优化施工步骤,拟定最佳施工方案,在施工过程中,实时跟踪、检查工程实际进度状况,并与当前时间下计划模型形态进行可视化比对,对偏差进行分析,及时发现施工问题、掌控项目进度。
【图例】
3.3、基于BIM技术的施工质量安全管理
项目施工过程中,通过预设检查点,指导质量、安全人员对物料质量、施工工艺质量以及施工现场的安全事项进行现场检查,对于发现的质量安全问题及时在BIM模型中进行标记并下发整改通知。通过BIM模型标记的方式进行施工质量安全管理,BIM模型能够作为一个直观有效的载体,无论是整体或者局部质量情况,都能以特定的方式呈现在模型之上。
【图例】
3.4、基于BIM模型的碰撞检查
在装修施工现场中,装修构件与各种管道、设备之间的冲突碰撞是经常遇到的棘手问题。在传统使用二维状态设计的方式下,建筑、结构、设备、装修等设计和施工是分别进行,各出一套图纸。在这种离散式的工作方式下,各构件之间的冲突碰撞是经常出现且不可避免的问题。而在 BIM 技术下,各构件都使用三维实体模型创建,只选择需要检测的模型类别,使用“协作”菜单中的 “碰撞检查”命令,即可根据进行的选择,检查并扫描三维模型以识别重叠或相互冲突的图元,并生成冲突报告,告知由重叠图元所导致的冲突数目,图元的重叠可能导致施工期间的错误。
【图例】
3.5、基于BIM模型的软装饰品
在 BIM 中,可以运用“族”的命令,直接调入预设好的三维室内家具、设备、陈设等模型。协助完成最终效果图。设计师可以利用三维模型在任意的视角上推敲设计,确定材料材质、饰面颜色、灯光布置、固定设施等,从而做到对设计进行细致的分析,保证了设计的质量。
【图例】
3.6、基于BIM模型的虚拟现实渲染
室内设计十分关注细节。灯光、材质、饰面、家具等细节影响着设计的最终效果。不管在概念设计阶段还是深化设计阶段,BIM 技术都支持设计师生动而方便地表现这些细节。我们从三维建模中虽然看到了各构件、物体的型、材质、纹理等信息。但效果略显呆板生硬。为了达到仿真的效果。我们运用 BIM 软件中的渲染命令,对三维空间进行渲染,达到照片级的真实感图像。BIM 实现了真正的“所见即所得”,对家装设计的细节部分可以清晰、真实显现。
【图例】
3.7、基于BIM模型自动生成详图
室内装修三维实体模型都由符合装修构造的面层、基层、龙骨和各种配件构成,这些内部构造信息都被记录在 BIM 软件中,因此 BIM技术可以直接从三维模型生成完成施工所需要的施工图、详图。由于生成的各种图纸都是来源于同一模型,所有的图纸、图表都是相互关联的,避免了不同视图之间出现的不一致现象。如果需要对设计进行更改,无论在哪一张视图上改动,相关联的图纸、图表上也跟着发生了关联变更,这种关联变更是实时的。
【图例】
3.8、基于BIM模型计算工程量
基于BIM技术自动统计工程量。从模型中生成各种门窗表、材料表以及各种综合表格十分容易,要统计某间隔墙的面积、体积,或者装饰构件的数量、价格、厂家信息也十分方便。设计师很容易利用它来进行工程概预算,为控制装修报价或投标报价提供了精确的数据依据,保证了实际成本的差异率在可控制的范围内,利用它生成采购清单等能够保证采购数量的准确性,对控制成本具有重要的现实意义。
【图例】
中人尚学以产教融合、校企合作、专业共建、共建二级学院、课程合作、合作办学、院校混合所有制改革、教育产业投资等多种合作方式为契机,真诚欢迎院校、产业企业、行业组织互访、交流、合作,共创职业教育事业的新辉煌。
公司地址:中国.郑州金水区俭学街2号(河南警察学院)
网 址:www.zhongrenedu.net
电 话:0371-66266959
邮 箱:wenlin2007505@163.com
关注公众号获取最新资讯

上一篇:装配式建筑究竟有多强大
下一篇:BIM技术应用于招投标的优势和挑战



